image/svg+xml Crystal Lake ® A LAKESHORE COMMUNITY

Pinellas Park's Premier Manufactured Home Community

Custom Homes

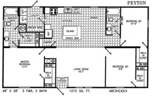
peyton

Bookmark the permalink.

© 2022 Lakeshore Communities. All rights reserved.